产品
  • 产品
  • 文章
  • 商铺
  • 论坛
  • 视频
搜索
详细说明

华为TP48300B-L04C1 通信电源

产品说明

华为TP48300B-L04C1  通信电源

2-1  机柜外观图

 

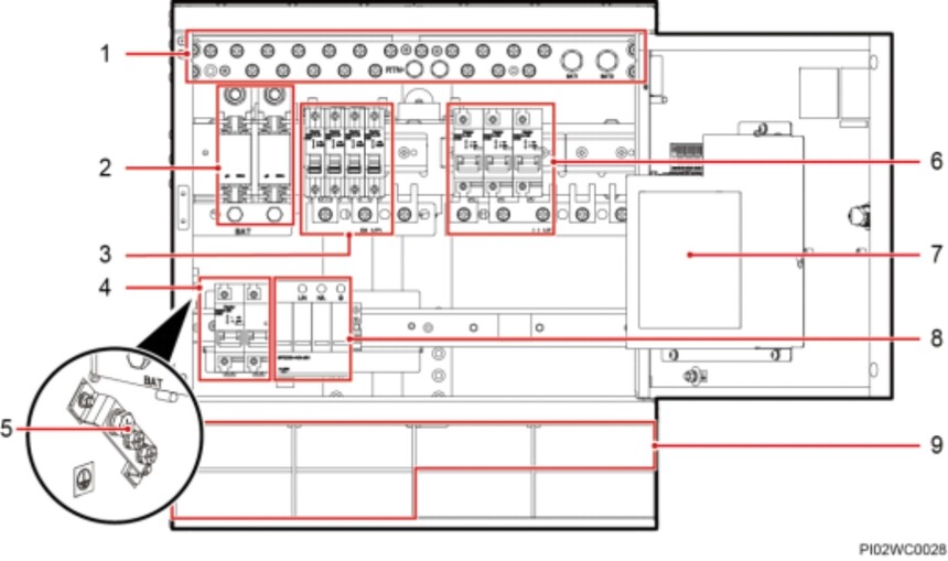
3-2  TP48300B-L04C1 内部结构

 

1RTN+母排       2)电池熔丝               3BLVD 空开

4)交流输入空开    5)接地排                 6LLVD 空开

7)监控单元        8)交流防雷器(SPD     9)整流模块安装空间

 

 

 


关于我们

品牌中心

产品中心

新闻动态

北京友谊世纪进出口贸易有限公司

地址:北京市房山区卓秀北街18号院9号楼1层101
电话: 17358751718
微信: 17358751718

×
seo seo