产品
  • 产品
  • 文章
  • 商铺
  • 论坛
  • 视频
搜索
详细说明

华为 TP48300B-N04C1 通信电源

产品说明

华为 TP48300B-N04C1 通信电源

2-1  机柜外观图

 

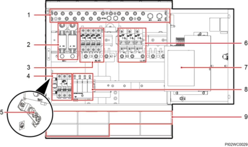
3-1  TP48300B-N04C1 内部结构

 

1RTN+母排           2)电池熔丝            3BLVD 空开

4)交流输入空开及端子   5)接地排              6LLVD 空开

7)监控单元             8)交流防雷器(SPD   9)整流模块安装空间



关于我们

品牌中心

产品中心

新闻动态

北京友谊世纪进出口贸易有限公司

地址:北京市房山区卓秀北街18号院9号楼1层101
电话: 17358751718
微信: 17358751718

×
seo seo