产品
  • 产品
  • 文章
  • 商铺
  • 论坛
  • 视频
搜索
详细说明

华为TP48200B-N20B3 通信电源

产品说明

华为TP48200B-N20B3 通信电源

2-1  机柜外观图

 

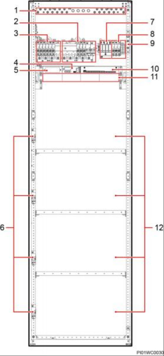
3-2  TP48200B-N20B3 内部结构

 

1RTN+母排       2)次要负载下电支路(LLVD 3)重要负载下电支 路(BLVD

4)监控模块        5)电池强制上电开关(盖板后 6)电池空开 SMU02B

7)交流防雷器      8)交流输入空开及端子         9)机柜接地排

10)用户接口模块   11)整流模块或太阳能模块安装  12)电池安装空间 UIM02C                             空间



关于我们

品牌中心

产品中心

新闻动态

北京友谊世纪进出口贸易有限公司

地址:北京市房山区卓秀北街18号院9号楼1层101
电话: 17358751718
微信: 17358751718

×
seo seo