产品
  • 产品
  • 文章
  • 商铺
  • 论坛
  • 视频
搜索
详细说明

华为MTS9300A 通信电源

产品说明

华为MTS9300A 通信电源 

2-1 外观

 

 

2-1 机柜指标

 

项目

指标

机柜外尺寸(高××深)

1600mm×650mm×650mm(包含底 座)

机柜重量

<120kg(不含电池和整流模块)

用户空间

9U

温控方式

设备舱:热交换

电池舱:直通风

防护等级

设备舱: IP55

电池舱: IP45

 


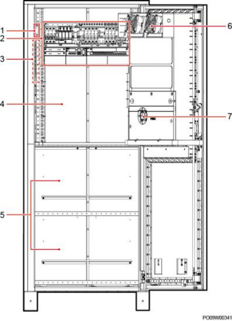
2-2 MTS9302A-HD16A1 内部结构

 

1 )门磁传感器                       2)电源插框                           3)机柜接地排

4)用户设备安装空间             5)电池安装空间                    6)内循环风扇

7 )外循环风扇



关于我们

品牌中心

产品中心

新闻动态

北京友谊世纪进出口贸易有限公司

地址:北京市房山区卓秀北街18号院9号楼1层101
电话: 17358751718
微信: 17358751718

×
seo seo