产品
  • 产品
  • 文章
  • 商铺
  • 论坛
  • 视频
搜索
详细说明

华为TP48200A-HD15D6 通信电源

产品说明

华为TP48200A-HD15D6 通信电源

2-1  机柜外观

 

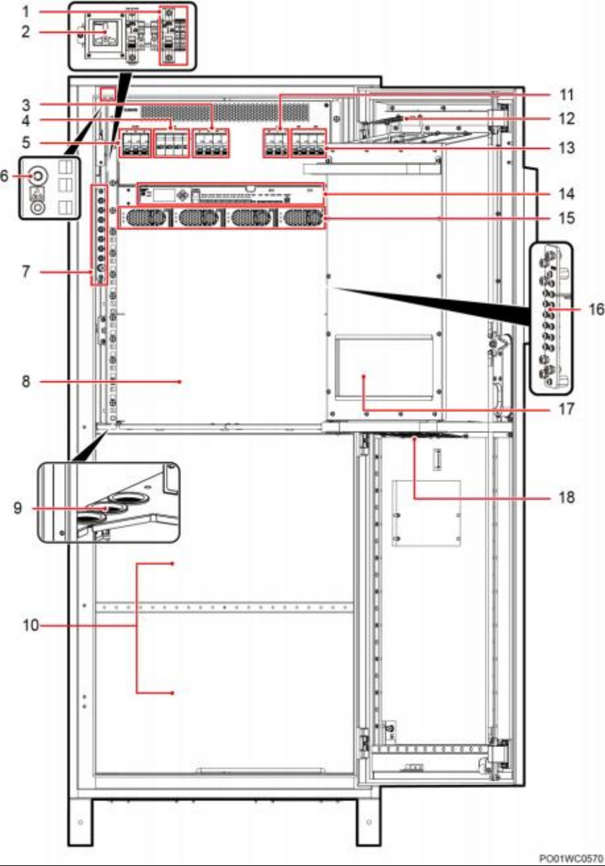
3-1  内部结构

 

1)交流输出空开及端子  2)维护插座           3)次要负载支路空开

4)交流防雷器          5)交流输入空开       6)静电接地点

7)接地排              8)用户设备安装空间   9)走线孔

10)电池安装空间       11)重要负载支路空开  12内循环风扇

13)电池空开           14)监控单元          15)整流模块安装空间

16RTN+母排          17)热交换芯          18)外循环风扇



关于我们

品牌中心

产品中心

新闻动态

北京友谊世纪进出口贸易有限公司

地址:北京市房山区卓秀北街18号院9号楼1层101
电话: 17358751718
微信: 17358751718

×
seo seo