产品
  • 产品
  • 文章
  • 商铺
  • 论坛
  • 视频
搜索
详细说明

华为TP48400A-HD15B1 通信电源

产品说明

华为TP48400A-HD15B1 通信电源

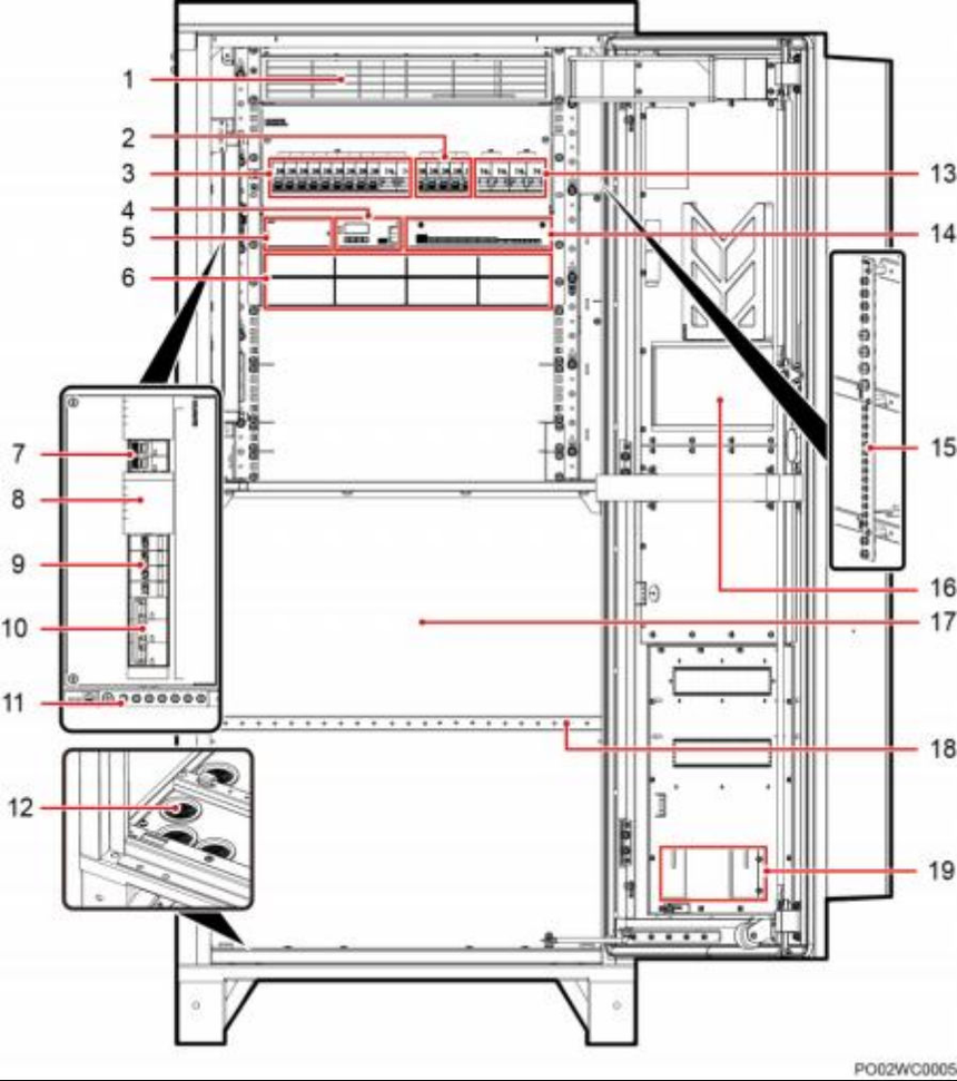
3-1  TP48400A-HD15B1 内部结构图

 

 

1)风机盒

2)重要负载支路(BLVD)空 

3)次要负载支路

LLVD)空开

4)监控模块

5)电池强制上电开关(在盖板 后面)

6)整流模块安装空间

7)交流输出空开

8N 接线端子

9)交流防雷器

10)交流输入空 

11)接地排

12)走线孔

13)电池支路空 

14)用户接口模块

15RTN+母排

16)热交换器

17)电池安装空间

18)电池架

19)加热器安装 空间



关于我们

品牌中心

产品中心

新闻动态

北京友谊世纪进出口贸易有限公司

地址:北京市房山区卓秀北街18号院9号楼1层101
电话: 17358751718
微信: 17358751718

×
seo seo