华为 TP48200A-HT19C2 通信电源
图2-1 机柜外观图

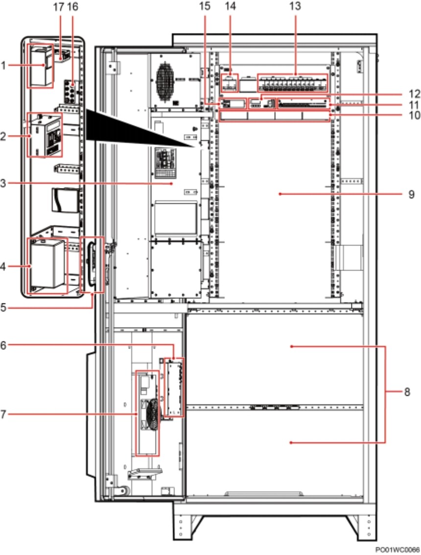
图3-4 TP48200A-HT19C2 内部结构
(1)智能电表(选配) (2)维护插座(选配) (3)HXC70S 热交换器
(4)蓝牙控制器(选配) (5)电子门锁(选配) (6)TCUA 控制盒
(7)TEC 模块 (8)电池安装空间 (9)用户设备安装空间
(10)整流模块安装空间 (11)用户接口模块 (12)监控模块
(13)直流配电单元 (14)交流输入空开 (15)电池强制上电开关
(16)机柜接地排 (17)电流互感器(选配)